Objektbeschreibung
Erster Eindruck:
Diese ca. 74 m² große 2,5-Zimmer-Wohnung im 2. Obergeschoss eines gepflegten Mehrfamilienhauses überzeugt durch einen gut geschnittenen Grundriss und bietet viel Potenzial für individuelle Gestaltung. Ein Balkon sorgt für zusätzlichen Wohnkomfort und angenehmes Tageslicht.
Ideal für Kapitalanleger oder Eigennutzer – insbesondere Singles oder Paare, die eine Wohnung mit Entwicklungsmöglichkeiten suchen.
Haus:
Das Mehrfamilienhaus wurde im Jahr 1950 in massiver Bauweise errichtet und befindet sich in einem gepflegten Gesamtzustand. Insgesamt umfasst das Gebäude 14 Wohneinheiten. Das Dach wurde im Jahr 2025 vollständig erneuert. Beheizt wird das Haus über eine Gasheizung, die eine zuverlässige Wärmeversorgung gewährleistet.
Die Kombination aus traditioneller Massivbauweise und fortlaufenden Modernisierungen macht das Gebäude besonders attraktiv für Bewohner, die Wert auf solide Substanz und langfristige Werterhaltung legen.
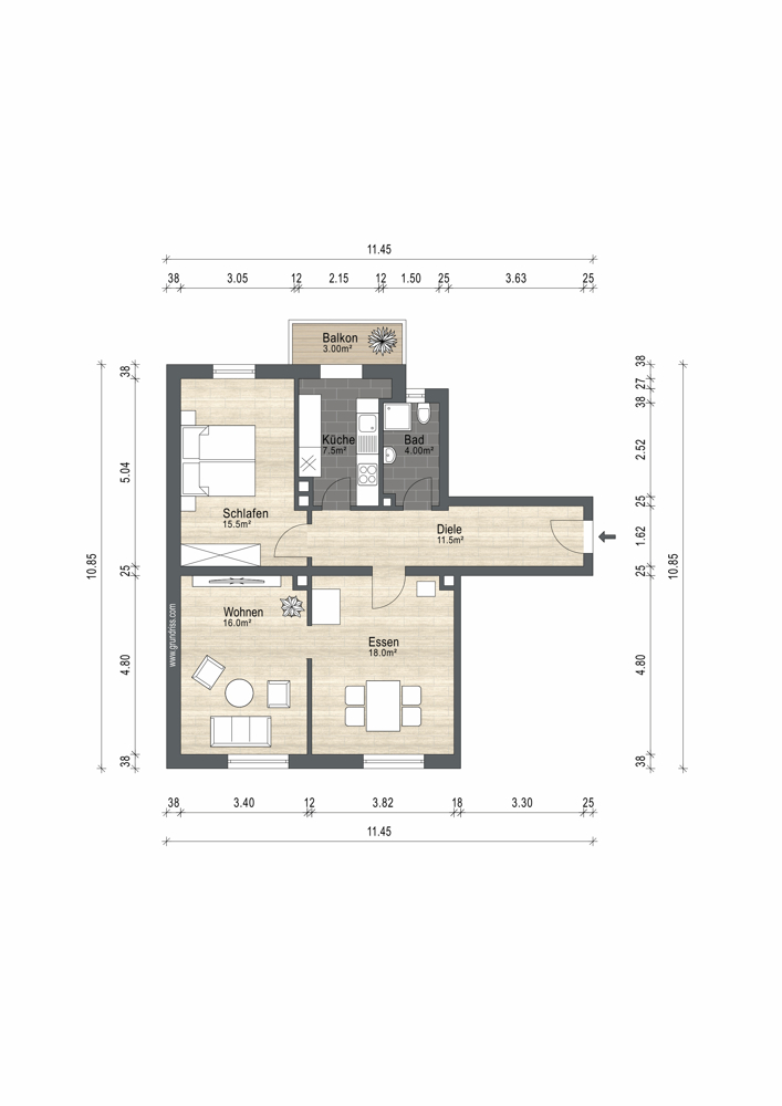
Wohnung:
Über eine rund 11,5 m² große Diele gelangen Sie sowohl in das Esszimmer mit ca. 18 m² und in das angrenzende Wohnzimmer mit ca. 16 m². Das geräumige Schlafzimmer mit etwa 15,5 m² bietet ausreichend Platz für eine komfortable Einrichtung.
Die Küche verfügt über ca. 7,5 m² und ist mit einer Einbauküche ausgestattet. Von hier aus besteht der direkte Zugang zum Balkon mit etwa 3 m², der einen kleinen, aber angenehmen Außenbereich bietet. Das Badezimmer ist mit Badewanne, WC und Waschbecken funktional ausgestattet.
Zur Wohnung gehört ein Keller- sowie ein Dachbodenabteil für Stauraum.
Insgesamt bietet die Wohnung viel Potenzial für Modernisierungsmaßnahmen und lässt sich in ein attraktives und individuelles Zuhause verwandeln.
Das Hausgeld liegt derzeit bei 210,70 €/ Monat.
Die Instandhaltungsrücklage der WEG beträgt ca. 115.068,75 €, wovon auf die Wohnung ca. 9.129,50 € entfallen (Stand 31.12.2024).
Ausstattung
Fazit:
•gut geschnittener 2,5-Zimmer-Grundriss mit viel Gestaltungspotenzial
•helle Räume und angenehme Wohnatmosphäre
•praktischer Balkon als zusätzlicher Außenbereich
•separate Küche mit Einbauküche
•Badezimmer mit Badewanne und klassischer Ausstattung
•Sanierungs- bzw. Modernisierungspotenzial für individuelle Gestaltung
•solide Hausstruktur in Massivbauweise
•Keller- und Dachbodenabteil für Stauraum
•ideal für Singles und Paare oder als Kapitalanlage
Lage
Lage:
Die Wohnung befindet sich in einer attraktiven Wohnlage in der Nürnberger Südstadt, die durch ihre gute Infrastruktur und kurze Wege überzeugt. Einkaufsmöglichkeiten für den täglichen Bedarf, Supermärkte, Bäckereien sowie verschiedene Dienstleister sind bequem erreichbar. Auch Ärzte, Apotheken und weitere Versorgungseinrichtungen befinden sich in unmittelbarer Nähe.
Die Anbindung an den öffentlichen Nahverkehr ist hervorragend: Bus- und U-Bahn-Linien liegen nur wenige Gehminuten entfernt und ermöglichen eine schnelle Verbindung in die Innenstadt sowie zu den umliegenden Stadtteilen. Auch die Verkehrsanbindung mit dem Auto ist dank der Nähe zu wichtigen Hauptverkehrsstraßen sehr gut.
Für Sport- und Freizeitaktivitäten bietet die Umgebung zahlreiche Möglichkeiten – von Fitnessstudios und Sportvereinen über Grünanlagen bis hin zu beliebten Spazier- und Laufstrecken. Der nahegelegene Luitpoldhain bietet mit seinen weitläufigen Grünflächen, Spazierwegen und Erholungsbereichen einen beliebten Rückzugsort mitten in der Stadt. Zudem laden Restaurants, Cafés und kleine Lokale in der Umgebung zu abwechslungsreicher Gastronomie und einem lebendigen Stadtteilgefühl ein.
Insgesamt bietet die Lage eine ausgewogene Mischung aus urbaner Nähe, guter Erreichbarkeit und vielfältigen Freizeitangeboten – ideal für alle, die bequem und gut angebunden in Nürnberg wohnen möchten.
In der näheren Umgebung befinden sich:
•Einkaufsmöglichkeiten
•Bus- und U-Bahnlinien
• Parks
• Luitpoldhain
• Restaurants und Cafés
•Freizeit- und Kulturangebote
• Ärzte und Apotheken
Entfernungen:
•Nürnberg Innenstadt 3,2 km
•Fürth 12,6 km
•Erlangen 23,9 km
Fahrzeit zum nächsten Bahnhof: 6 min
Fahrzeit zur nächsten Autobahnauffahrt: 12 min
Fahrzeit zum nächsten Flughafen: 21 min




