Objektbeschreibung
Der erste Eindruck:
Dieses großzügige Zweifamilienhaus aus dem Jahr 1974 befindet sich auf einem ca. 767 m² großen Grundstück in ruhiger Wohnlage von Neumarkt.
Durch die Aufstockung im Jahr 1988 mit dem dazugehörigen Ausbau des Dachgeschosses zur Einliegerwohnung bietet die Immobilie vielseitige Nutzungsmöglichkeiten.
Mit den zwei separaten Wohneinheiten eignet sich die Immobilie ideal für Familien, Mehrgenerationenwohnen oder Käufer, die durch die Vermietung der Dachgeschosswohnung zusätzliche Einnahmen erzielen möchten. Gerade die Möglichkeit, einen Teil der Immobilie zu vermieten, macht dieses Haus besonders attraktiv und kann die monatliche Finanzierungsbelastung deutlich reduzieren.
Das Haus verfügt über eine solide Bausubstanz, eine Doppelgarage sowie eine Einzelgarage und einen großen Keller mit viel Nutzfläche. Beheizt wird die Immobilie über eine Öl-Zentralheizung aus dem Jahr 1991.
Das Erdgeschoss wurde im Jahr 2016 umfassend saniert. Dabei wurde die Elektrik, die Wasserleitungen sowie das Badezimmer und die Küche erneuert. In Küche und Bad sorgt zusätzlich eine Fußbodenheizung für angenehmen Wohnkomfort. Das Dachgeschoss bietet Raum für individuelle Modernisierungs- und Gestaltungsideen und kann nach eigenen Vorstellungen weiterentwickelt werden.
Das Haus:
Die Immobilie umfasst ca. 243 m² Wohnfläche mit insgesamt sieben Zimmern sowie zusätzliche Nutzflächen im Keller. Das Erdgeschoss präsentiert sich modern und offen gestaltet, während das Dachgeschoss als eigenständige Einheit genutzt werden kann.
Das Erdgeschoss:
Über den Windfang gelangen Sie in alle Ebenen des Hauses sowie in einen separaten Büroraum mit ca. 15,08 m², der sich flexibel nutzen lässt – etwa als Homeoffice, Gästezimmer oder auch als kleine Gewerbeeinheit. Besonders attraktiv ist der im Jahr 2007 angebaute Wintergarten mit ca. 14,10 m², der direkt an diesen Raum anschließt und über einen eigenen Zugang von außen verfügt.
Die Erdgeschosswohnung empfängt Sie mit einer großzügigen Diele mit etwa 16,89 m², die einen schönen Blick auf die Terrasse und den Garten bietet. Von hier aus gelangen Sie in den offen gestalteten Wohn- und Essbereich. Das Wohnzimmer mit rund 20,38 m² überzeugt durch seine angenehme Größe und einen gemütlichen Schwedenofen. Der großzügige Küchen- und Essbereich mit etwa 30,74 m² ist mit einer modernen Einbauküche samt Kochinsel ausgestattet, die im Kaufpreis enthalten ist.
Ein Flur mit etwa 5,67 m² führt in die privaten Räume. Hier befinden sich das Elternschlafzimmer mit rund 16,96 m², ein Kinderzimmer mit etwa 15,08 m² sowie das modernisierte Badezimmer mit ca. 9,06 m². Dieses ist ausgestattet mit Badewanne, bodentiefer Dusche, WC, Bidet und Waschbecken.
Ausstattung
Das Dachgeschoss:
Die Dachgeschosswohnung mit ca. 113,66 m² ist über die Treppe im Windfang erreichbar und bildet eine eigenständige Wohneinheit. Ein kleiner Vorbereich mit Gäste-WC führt in die großzügige Diele mit ca. 12,07 m², die alle Räume erschließt.
Von hier gelangen Sie in den offenen Koch- und Essbereich mit ca. 18,88 m², ausgestattet mit einer Einbauküche inklusive Theke. Das helle Wohnzimmer mit ca. 31,91 m² überzeugt durch seine hohe Decke und den Zugang zum Balkon mit ca. 10,32 m². Eine nachträglich eingebaute Empore bietet zusätzlichen Raum, beispielsweise als Arbeits- oder Rückzugsbereich.
Ergänzt wird die Wohnung durch einen praktischen Abstellraum mit ca. 7,18 m² sowie einen weiteren Flur mit ca. 3,79 m², der zu den privaten Räumen führt. Hier befinden sich ein Schlafzimmer mit ca. 15,90 m², ein Kinderzimmer mit ca. 12,99 m² sowie das Badezimmer mit ca. 10,94 m², ausgestattet mit Dusche, Badewanne, WC und Doppelwaschbecken.
Die Wohnung bietet eine solide Basis und kann durch Modernisierungen individuell weiterentwickelt werden.
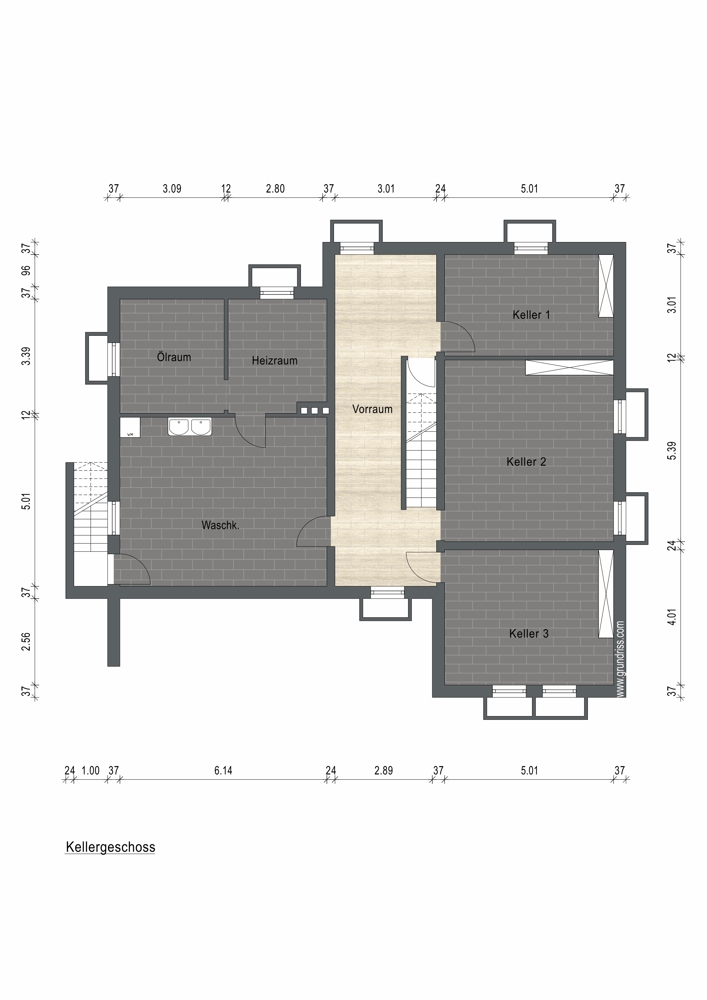
Das Kellergeschoss:
Das Kellergeschoss bietet mit einer großzügigen Nutzfläche von ca. 139,26 m² vielfältige Möglichkeiten und überzeugt durch seine funktionale Aufteilung.
Neben dem Heizraum und dem separaten Ölraum stehen ein Waschraum sowie ein Flur zur Verfügung. Ergänzt wird das Platzangebot durch drei großzügige Kellerräume, die sich ideal als Lagerflächen, Hobbyräume oder Werkstatt nutzen lassen.
Fazit:
• Zweifamilienhaus mit ca. 243 m² Wohnfläche
• Einliegerwohnung im Dachgeschossmit ca.113,66 m²
• Grundstück ca. 767 m²
• Erdgeschoss modernisiert, Dachgeschoss mit Gestaltungspotenzial
• Wintergarten und separater Büroraum
• großer, vielseitig nutzbarer Keller mit ca. 139,26 m²
• Doppelgarage und Einzelgarage
• Öl-Zentralheizung (1991)
• ideal für Familien, Mehrgenerationenwohnen oder Teilvermietung
Lage
Die Lage:
Die Immobilie befindet sich in Neumarkt in der Oberpfalz, einer lebendigen Kreisstadt mit hoher Lebensqualität.
Die Umgebung zeichnet sich durch eine ruhige Wohnlage mit guter Infrastruktur aus.
Einkaufsmöglichkeiten, Schulen, Kindergärten, Ärzte sowie zahlreiche Freizeitangebote sind schnell erreichbar.
Die gute Verkehrsanbindung ermöglicht eine zügige Erreichbarkeit der umliegenden Städte sowie der Metropolregion Nürnberg.
Die naturnahe Umgebung mit vielfältigen Rad- und Wanderwegen sorgt für einen hohen Erholungswert und macht die Lage besonders attraktiv für Familien und Naturliebhaber.
In der Nähe befinden sich:
• Einkaufsmöglichkeiten
• Ärzte und Apotheken
• Kindergärten und Schulen
• Gastronomie und Cafés
• Sport- und Freizeitmöglichkeiten
• gute Verkehrsanbindung
Entfernungen:
•Nürnberg 46,7 km
•Regensburg 69,4 km
•Ingolstadt 78,9 km
•München 154 km
Fahrzeit zur nächsten Bushaltestelle: 1 min
Fahrzeit zum nächsten Bahnhof: 8 min
Fahrzeit zur Autobahn: 6 min
Fahrzeit zum nächsten Flughafen: 36 min
Kontaktdaten

92318 Neumarkt in der Oberpfalz



